c&p house | mindelo | portugal  
2024 | on going with sara almeida

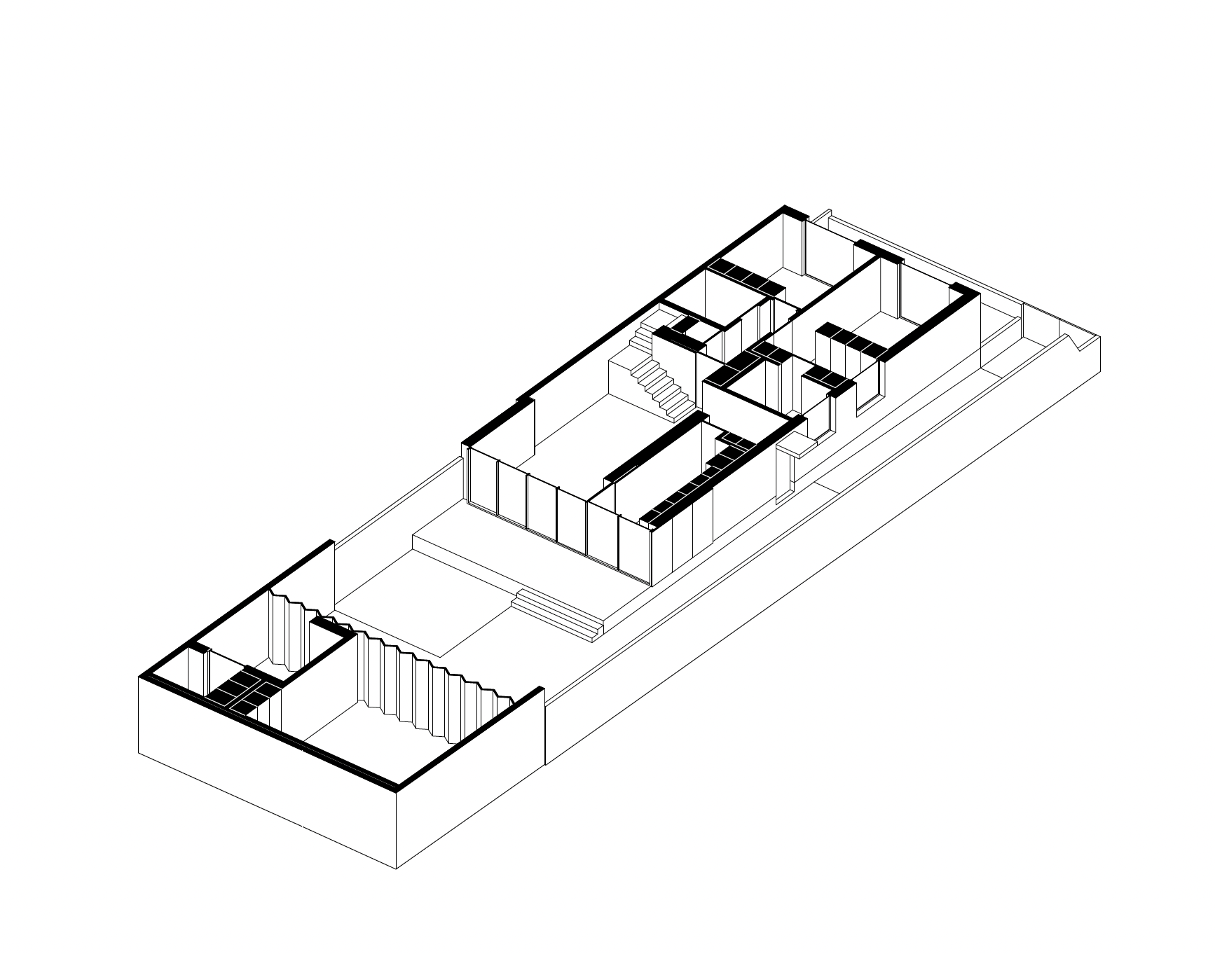
This project involves the rehabilitation of a small vacation house in Mindelo, recently inherited by the client's family. The intervention preserves the home’s original spirit while updating it for contemporary use. Through careful spatial reorganization, material refinement, and subtle expansions, the house is transformed into a comfortable, year-round retreat, honoring its emotional heritage while adapting to modern family living.



mon oncle | jacques tati



project
c&p house
client
private
location
mindelo, portugal
date
2024 (on going)
intervention area
200 sqm
architecture
adriano pimenta, sara almeida
collaborators
joão santos