kopke apartments | porto | portugal
2009 with octávio queirós
 
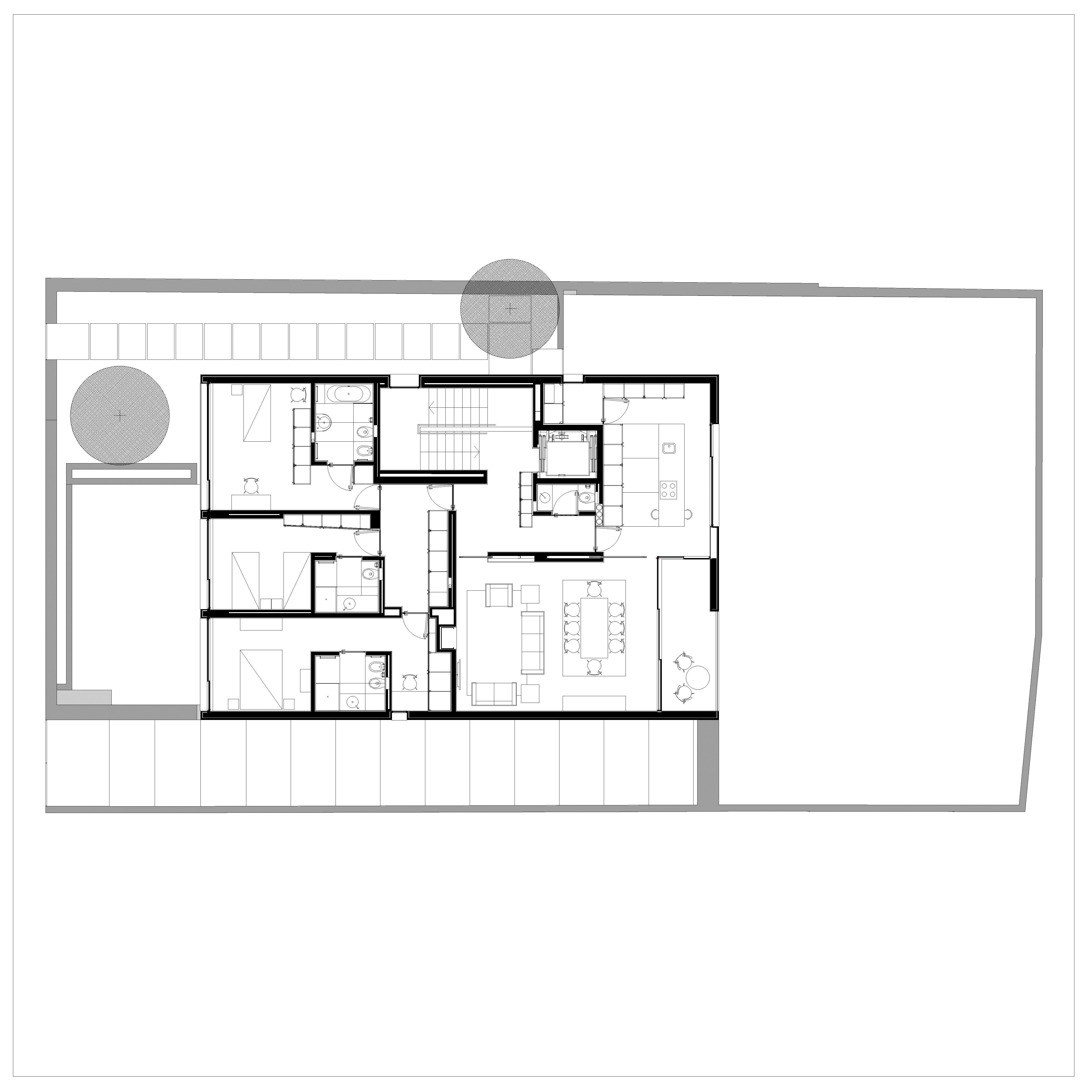
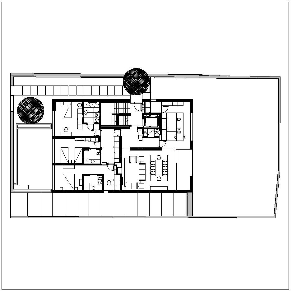
This residential project consists of a set of three-level apartments, designed and never builed, along rua joaquim kopke, featuring a clean, contemporary architectural language. Each unit is vertically organized across three floors, connected by a shared basement level that includes a common room and private parking. The design emphasizes functional clarity, material simplicity, and a sense of quiet urban integration within a compact site.


 

josef albers


project
kopke apartments
client
odlaca, gestão e investimentos imobiliários lda
location
rua de joaquim kopke, porto, portugal
date
2009
intervention area
510 sqm
architecture
adriano pimenta, octavio queirós
coordination
carolina salcedo
collaborators
ana ferreira, maria vasconcelos
3d
metro cúbico digital