l&j apartment | lisbon | portugal  
2016 | 2017 by sara almeida
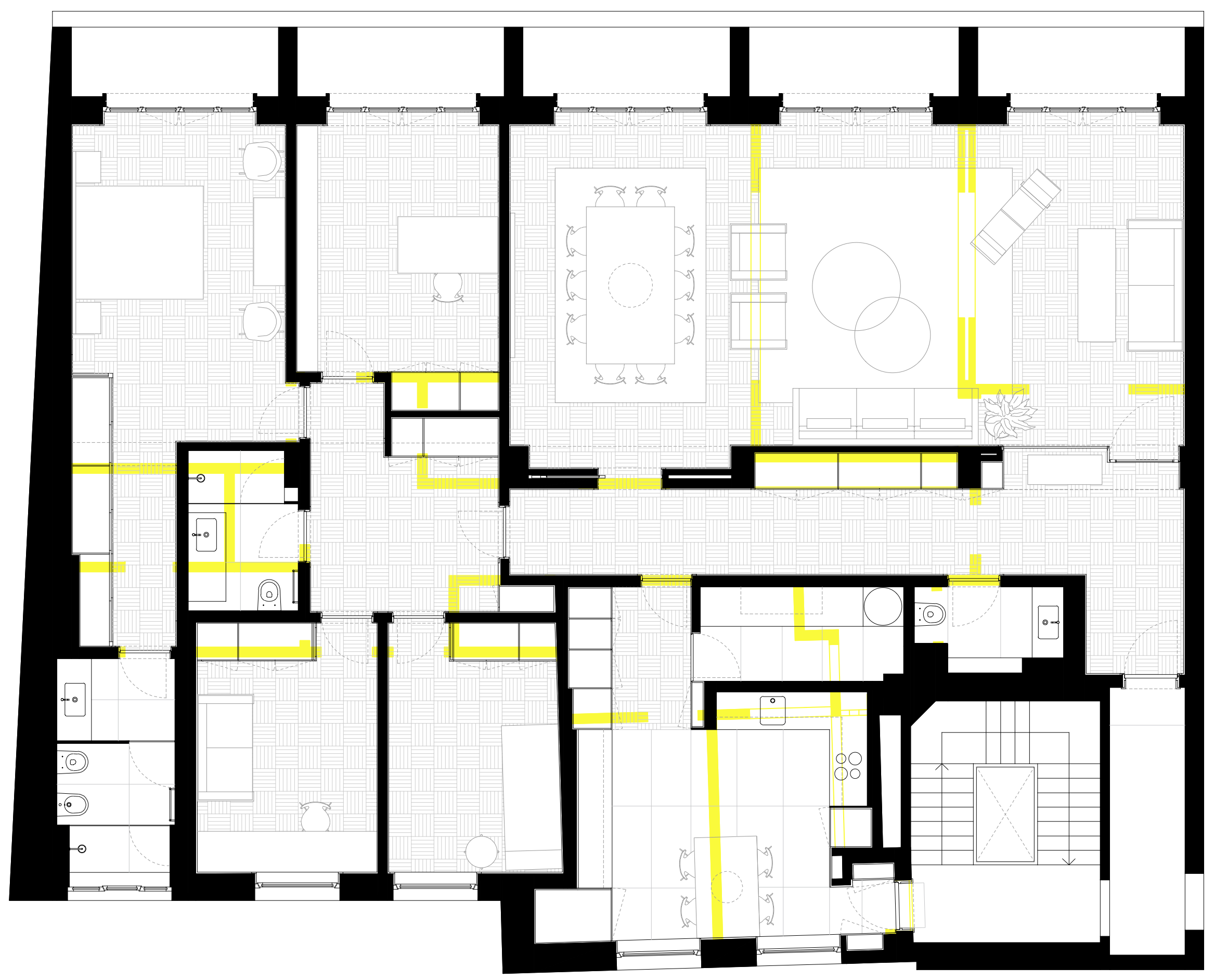
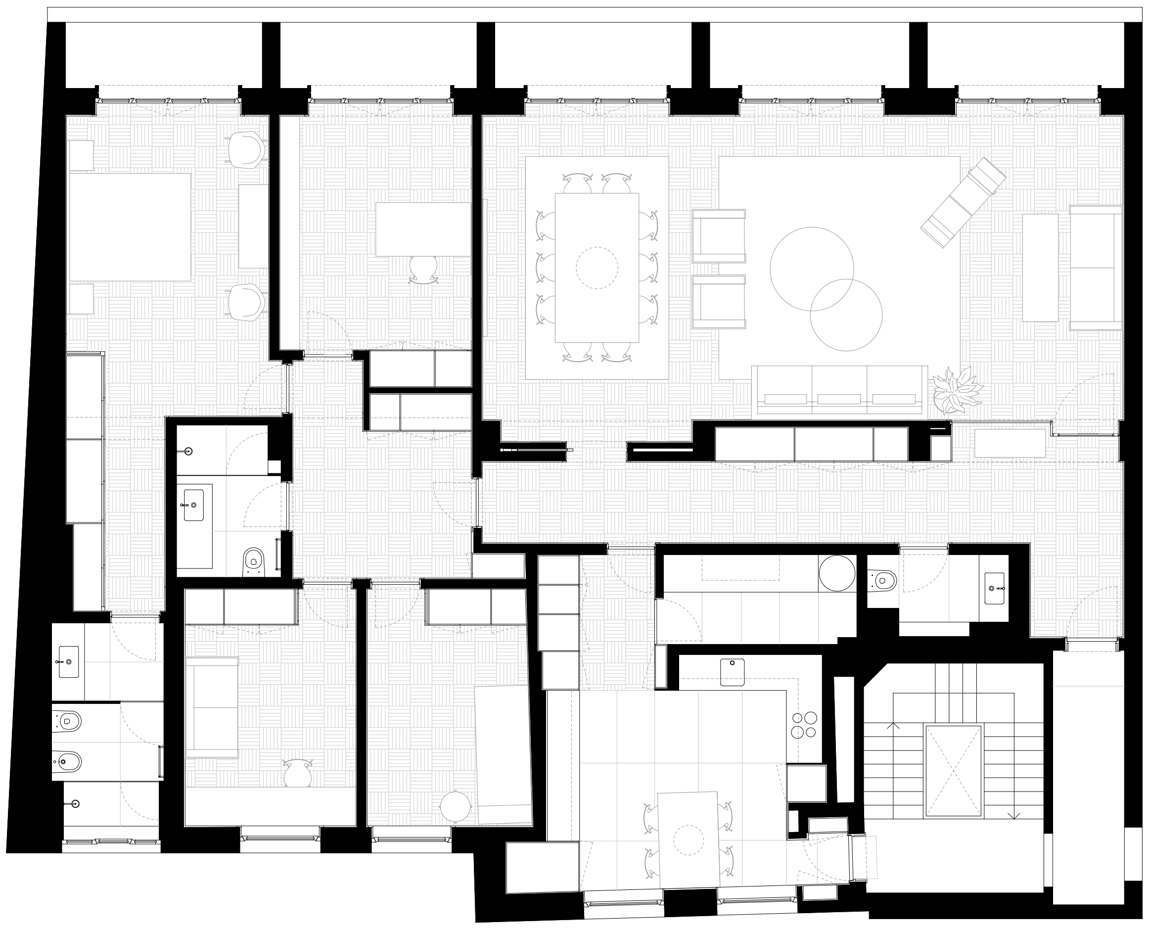
Located on Lisbon’s avenida da república, in a building originally designed by architect Fernando Silva, this apartment was carefully transformed into a four-bedroom residence.
The intervention preserves the original spirit and architectural character of the space, maintaining key elements and proportions while adapting it to contemporary living needs. The result is a respectful renovation that blends heritage with functionality.



joseph bueys



project
l&j apartment
client
private
location
avenida da república | lisbon | portugal
date
2016 | 2017
intervention area
320 sqm
architecture
sara almeida
photos
ramon de melo