pêro alenquer houses | porto | portugal 
2020 | on going under construction)

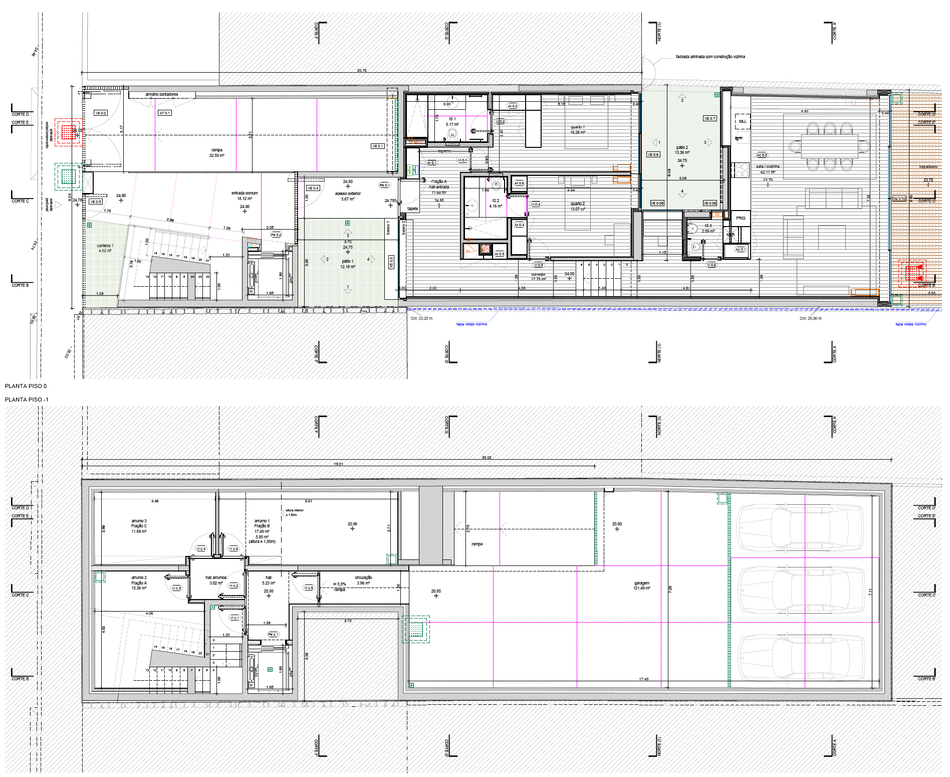
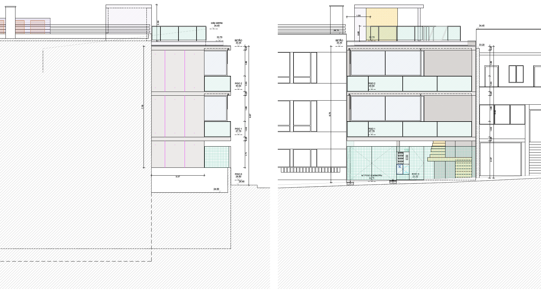
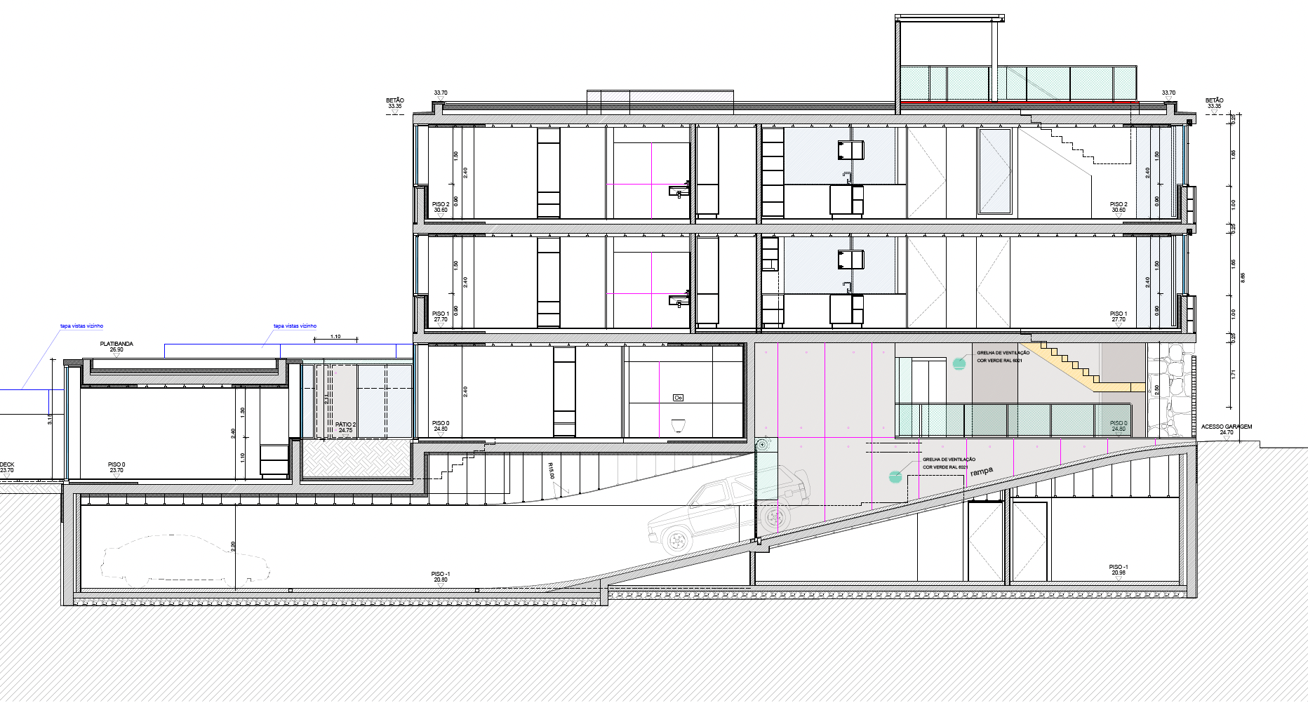
The Pêro de Alenquer Houses is a residential project with 3 bedrooms apartments located in the Foz area of Porto, Portugal. This development comprises a series of 3 modern homes designed to integrate seamlessly with the existing urban fabric while offering contemporary living spaces.
The project emphasizes a harmonious relationship between architecture and its surroundings, utilizing materials and forms that reflect the local context. Each residence is thoughtfully designed to maximize natural light and provide private outdoor spaces, enhancing the quality of life for its inhabitants.

 


project
pêro alenquer houses
client
fórmulas & perímetros lda
location
rua de pêro de alenquer, porto, portugal
date
2021 (under construction)
intervention area
450 sqm
architecture
adriano pimenta
collaborators
joão santos, paulo morgado, sara almeida, ricardo medina
engineering coordinator
pedro costa pereira (a3r)
structural engineer
a3r
hydraulic engineer
tekk engenheiros consultores
electrical engineer
tekk engenheiros consultores
mechanical engineer
tekk engenheiros consultores
acoustic engineer
amplitude acoustic
3d
combo architects studio
contractor
ctr, construções técnicas e reabilitação lda