adriano
pimenta
arquitectos

 
     
                       

t&v house | ílhavo | portugal 
2020 with sara almeida

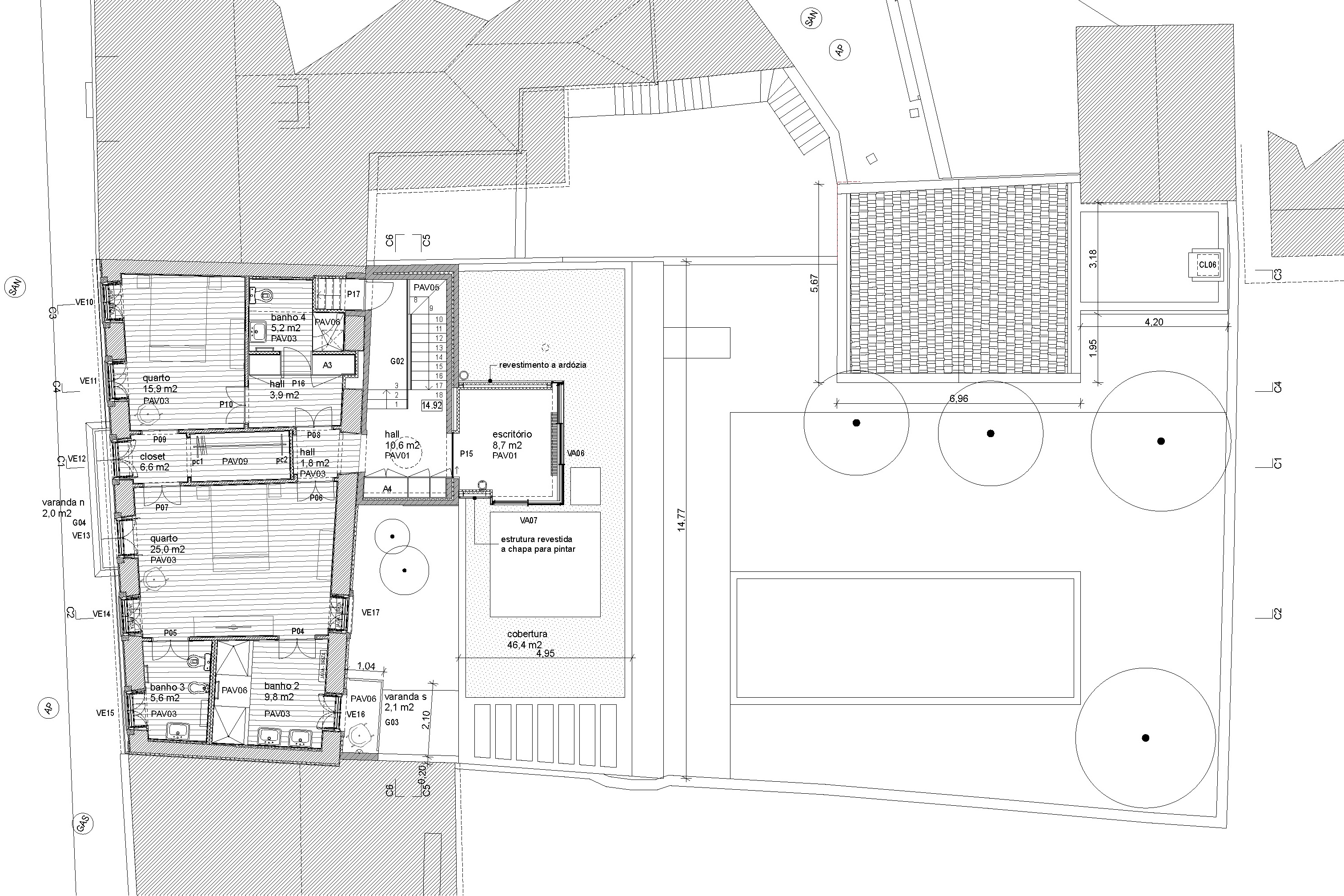
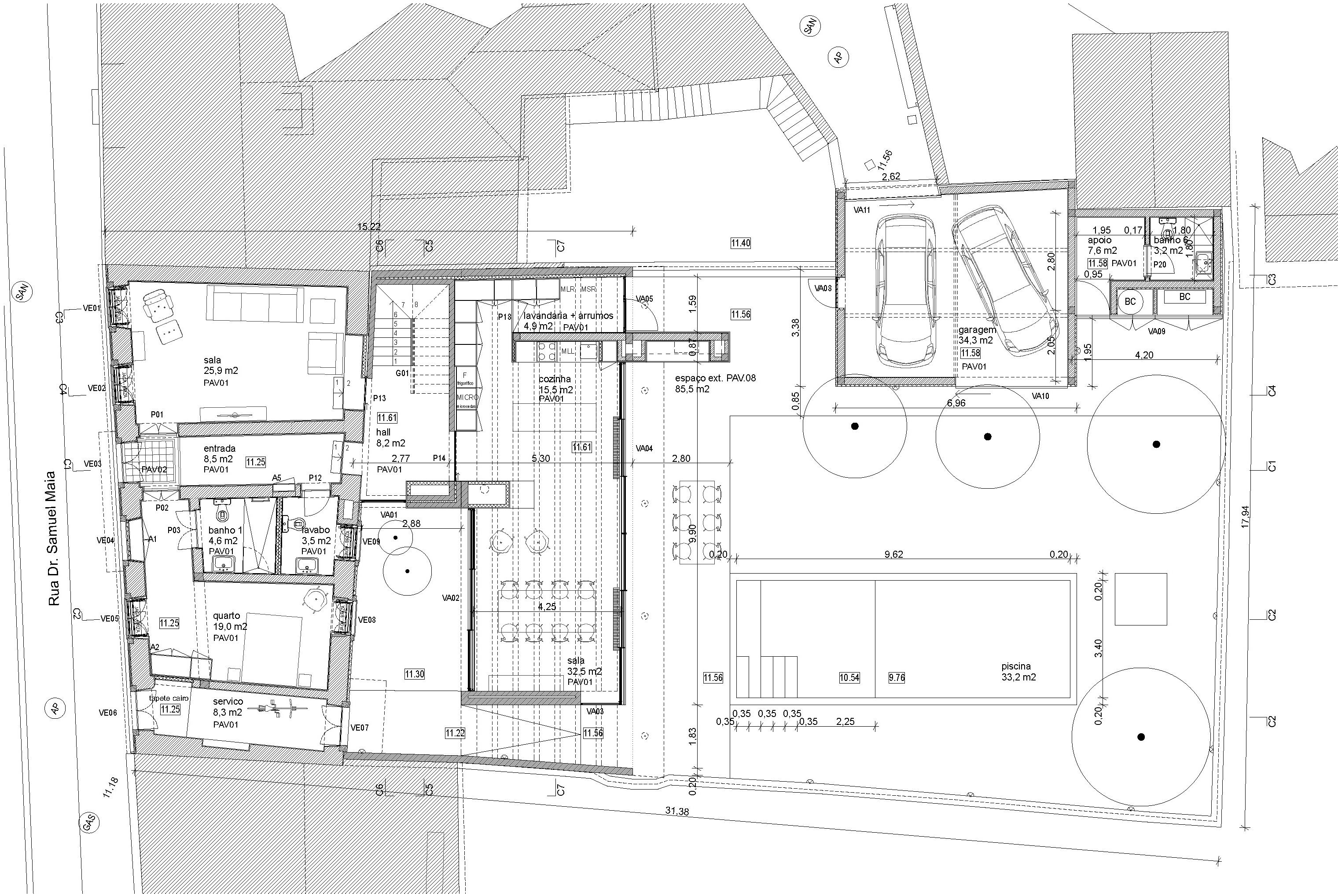
This rehabilitation project in Ílhavo honors the legacy of an old house once belonging to a ship commander. Rich in heritage, the house preserves its original ceilings, carved doors, and hand-painted wall details, all carefully restored. A new contemporary volume extends the living space toward the swimming pool, creating a dialogue between the historic fabric and modern living, seamlessly bridging past and present.

 





project
t&v house
client
private
location
ilhavo, portugal
date
2020
intervention area
320 sqm
architecture
adriano pimenta, sara almeida
engineering
ana vale